HusCompagniet

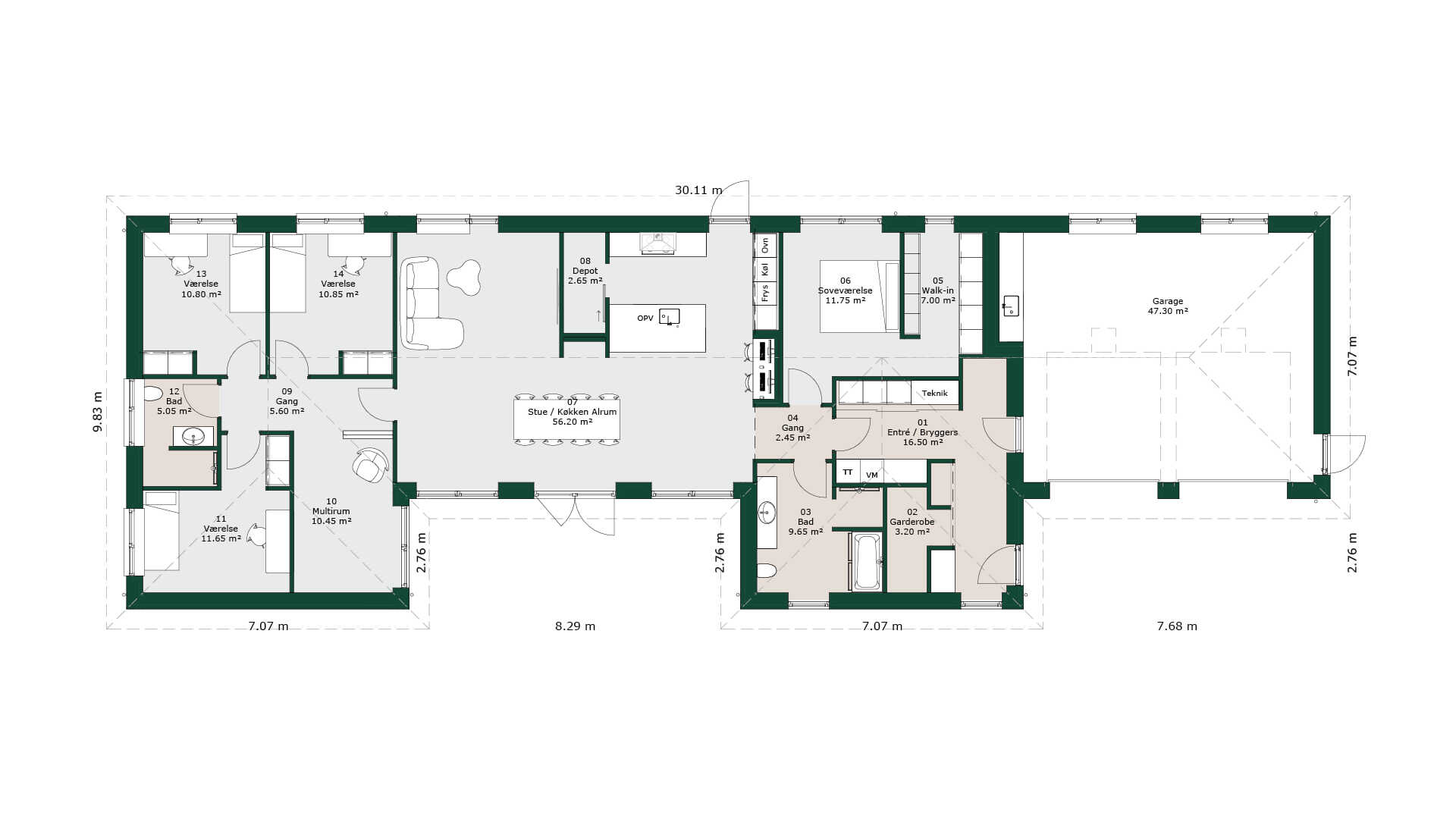
Stor garage til 2 biler med dobbeltport. Fra garagen er der direkte adgang til husets kombinerede entré/bryggers, med god plads til hverdagens gøremål samt en niche til garderobe. Huset byder på en planløsning hvor der er lagt vægt på funktionalitet, hygge og gode muligheder for opbevaring. I køkkenet findes blandt andet et fint depot, som giver masser af opbevaringsplads. I det store køkken/alrum og stue er der god mulighed for at samle den store flok af venner og familie. Der er god plads til opbevaring i den rummelige garage, depotet ved køkkenet samt i walk-in. Forældreafdeling med eget walk-in, mens det store badeværelse med badekar ligger for sig selv, på modsatte side af gangen.

Huset rummer 3 gode børneværelser og et multirum, der kan konverteres til et fjerde børneværelse.

Vi ser frem til at kontakte dig hurtigst muligt. Når du trykker send her, afgiver du samtykke til, at vi fremover må henvende os til dig på e-mail og telefon. Vores henvendelser indeholder god information om husbyggeri og konkrete tilbud. Vi behandler dine personoplysninger med stor omtanke, og som beskrevet i vores persondatapolitik Du kan til enhver tid tilbagekalde dit samtykke.

Bestil vores gratis katalog og se masser af arkitektur, få fakta, inspiration og bliv klogere på dine muligheder. Bliv inspireret til dit nye hjem.