HusCompagniet

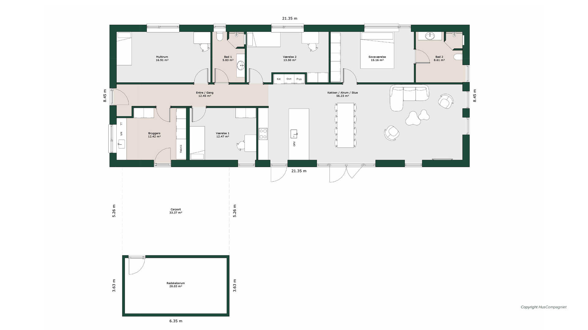
Her kommer man tørskoet ind i bryggerset fra carporten. Her er god opbevaringsplads og plads til at tørre tøj.  Planløsningen byder på to store børneværelse og et stort multirum, hvor der er plads til kreativitet og hobbyaktiviteter. Forældreafdelingen rummer et stort soveværelse med skabsvæg og badeværelse. Stue, alrum og køkken er i ét og byder på flere udgange til terrasse og masser af lysindfald.

Vi ser frem til at kontakte dig hurtigst muligt. Når du trykker send her, afgiver du samtykke til, at vi fremover må henvende os til dig på e-mail og telefon. Vores henvendelser indeholder god information om husbyggeri og konkrete tilbud. Vi behandler dine personoplysninger med stor omtanke, og som beskrevet i vores persondatapolitik Du kan til enhver tid tilbagekalde dit samtykke.

Bestil vores gratis katalog og se masser af arkitektur, få fakta, inspiration og bliv klogere på dine muligheder. Bliv inspireret til dit nye hjem.