HusCompagniet

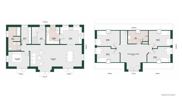
Som i klassisk patricierindretning er stueetagen her indrettet til familiesamvær, gæster og fester, mens førstesalen helt og holdent er forbeholdt sove- og badeværelser. Førstesalen byder på hele 3 store børneværelser med tilhørende badeværelse og en forældreafdeling med stort og praktisk walk-in, soveværelse og ikke mindst et stort badeværelse.

Bemærk bl.a. at stueetagen indeholder gæstetoilet uden bad og praktisk depot til opbevaring.

Vi ser frem til at kontakte dig hurtigst muligt. Når du trykker send her, afgiver du samtykke til, at vi fremover må henvende os til dig på e-mail og telefon. Vores henvendelser indeholder god information om husbyggeri og konkrete tilbud. Vi behandler dine personoplysninger med stor omtanke, og som beskrevet i vores persondatapolitik Du kan til enhver tid tilbagekalde dit samtykke.

Bestil vores gratis katalog og se masser af arkitektur, få fakta, inspiration og bliv klogere på dine muligheder. Bliv inspireret til dit nye hjem.