”Vi valgte HusCompagniet, fordi de har bygget allerflest huse”
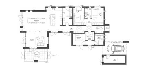
Et leverum med udsigt til sø og plads til et langbord til 20 gæster var omdrejningspunktet, da Camilla og Niels skulle bygge nyt. Kom med på besøg i deres flotte funkis på 222 kvadratmeter.
Udgangspunktet for planlægningen af Camilla og Niels’ nye hus var ét stort leverum med køkken-alrum og stue, hvor parret og deres to børn kunne nyde godt af højt til loftet, god plads til gæster og fester og ikke mindst den skønneste udsigt til sø og træer.
”Vi ville gerne have masser af plads til et permanent langbord, så vi nemt kunne have 20 mennesker til middag, uden at det krævede, at vi skulle hente ekstra borde og stole,” fortæller Camilla og fortsætter:
”Vi har altid mange gæster og holder årligt flere fester og fødselsdage, og til dagligt bliver vi hurtigt 8-12 stykker, bare når børnene har venner med hjemme.”
Camilla og Niels havde samtidig et ønske om at kunne nyde udsigten fra leverummet frem for fra værelser. Derfor er placeringen på grunden nøje planlagt, ligesom grunden krævede en hel del nivellering for at kunne passe til et hus i ét plan.
”I et hus i to plan havde vi været nødt til at gå ovenpå for at kunne nyde udsigten, men vi ville gerne have godt udsyn fra der, hvor vi bruger allermest tid,” forklarer Camilla.
Et hus efter egne ønsker og behov
Det er også ved langbordet i det store opholdsrum, Camilla og Niels arbejder, når de arbejder hjemme. Parret droppede nemlig planen om et ekstra værelse til kontor eller gæsteværelse og puttede i stedet kvadratmeterne ind i det store opholdsrum.
”Når vores børn om få år er flyttet hjemmefra, så vil vi ikke have alle mulige tomme rum stående. I stedet indrettede vi det store alrum, så det også ville være et dejligt sted at arbejde fra, og vi ville ikke have undværet noget af det her til fordel for et ekstra værelse,” forklarer Camilla og understreger:
”Vi har valgt at få bygget et hus, som passer alene til vores familie uden at tænke på et eventuelt salg senere hen.”
Udvendigt udtryk i perfekt balance
Camilla og Niels’ funkis er hvid i kombination med nogle felter af flotte mursten for at variere udtrykket. Indvendigt rammer de sorte vinduer udsigten godt ind, og den grønne væg i køkken-alrummet giver et varmt og organisk twist, som samtidig passer til omgivelserne.
”Det var vigtigt for os at få et sted, der havde noget charme, så huset ikke fremstod som en stor, ny klods,” fortæller Niels, der af samme grund gerne ville have, at huset havde forskellige højder og vinkler for at skabe et mere spændende udtryk og en have med forskellige miljøer.
”Oprindeligt ville vi også gerne have haft noget træ på facaden, men det blev for meget med tre forskellige materialer – i stedet har vi fået træet ind på terrassen, som bløder udtrykket op,” forklarer han og fortsætter:
”Vi købte derudover med det samme nogle store planter og træer for at få noget havemiljø og for at skabe lidt afskærmning fra start.”
Camilla og Niels har også fået bygget et smukt, integreret orangeri med pejs og gulvvarme.
Det har givet familien et ekstra rum, hvor inde og ude smelter sammen, og som samtidig bryder husets hvide facade og skaber en vinkel på huset.
Tillid til HusCompagniet
Da Camilla og Niels skulle vælge, hvem de ville have til at bygge deres nye hus, undersøgte de, hvor mange huse, de forskellige firmaer i branchen havde bygget.
”Vi valgte HusCompagniet, fordi de har bygget allerflest huse, og derfor havde vi tillid til, at der var styr på tingene. Det gav os en sikkerhed og en tryghed, at der kunne leveres ind på varen,” forklarer Camilla.
Parret var derudover glade for processen og dialogen med både byggerådgiver, tegnestue og byggeledelse.
”Arkitekten i HusCompagniet foreslog ting, vi ikke selv havde tænkt på – f.eks. den lange, åbne gang, som giver et flot view hele vejen igennem huset. Det var også ham, der foreslog, at der er åbent på hver side af pejsen, så stuen ikke blev helt lukket inde. Det havde vi ikke selv tænkt på,” fortæller Camilla.
Læs også
Husk at besøge vores udstillingshuse
Kig forbi, og få en snak med vores dygtige byggerådgivere - de er klar til at hjælpe jer videre med jeres boligdrøm. De fleste udstillingshuse har åbent hver weekend, enkelte er åbne efter aftale. Se adresser og åbningstider nedenfor.
