Gå til primært indhold Gå til footer indhold

Moderne parcel med klassisk udtryk

Louise og Morten har bygget et hus på 195 m² med en kombination af moderne linjer, klassiske detaljer og flere niveauforskelle.

En følelse af at gå på opdagelse, og at der gemmer sig noget mere, end man lige tror. Det var det, Louise og Morten havde et ønske om at skabe i deres nye hus – og med en skrånende grund var der potentiale for at opnå lige præcis det.

”Det sjove er, at man ude fra vejen slet ikke kan se, hvad husets indretning kan. Det åbner sig virkelig op, når man kommer ind,” fortæller Louise, der sammen med sin mand Morten og deres tre børn har fået bygget et hus på 195 kvadratmeter med to nedsænkninger, der giver 304 cm til loftet i køkken-alrummet og hele 344 cm til loftet i stuen.

Fra entréen i huset kan man kigge langt ned og fornemme, at der er mere på vej.

”Det skaber en spændende effekt og en lyst til at gå på opdagelse i vores hus,” siger Louise.

Familiens hus er et moderne parcelhus uden udhæng, men arkitekturen har fået flere twists, som tilfører et klassisk udtryk. F.eks. har de store vinduespartier fået sprosser, og taget er røde tegl.

”Vi havde tidligere en drøm om at bo i en gammel landejendom, og det røde tag og sprossevinduerne er vores måde at få det lidt landlige look ind i noget nyt,” forklarer Louise.

Niveauerne skaber en spændende effekt og en lyst til at gå på opdagelse i vores hus.

Louise og Morten

Louise og Mortens favoritløsninger

Huset åbner sig op

Vi elsker, hvordan huset åbner sig op til noget større, når man kommer indenfor, og at man helt oppe fra gangen kan se ned i skoven gennem vinduerne i køkken-alrummet.

Niveauforskellene

Niveauforskellene i huset skaber en helt særlig rumoplevelse i de rum, hvor vi lever og er sammen.

Terrassemiljøerne

Vi kan godt lide, at terrasserne er lidt anderledes end blot ét stort dæk. På grund af niveauerne har vi fået skabt små kroge og miljøer, vi kan sidde i afhængig af solen.

Personlige detaljer

Indendørs er der også kælet for detaljerne i materialevalget for at skabe et personligt, varmt og hyggeligt hjem. Fra mikset mellem træ, mursten og klinker i varme toner til lange gardiner, farver på væggene og sorte vinduer indvendigt.

”Der er virkelig mange muligheder for at sætte sit eget præg på udtrykket, når først man går ind i det, og så er det bare om at prioritere og at finde ud af, hvad der er vigtigst,” siger Louise og fortsætter:

”For os betød det rigtig meget, at vi havde en dejlig fornemmelse indenfor. Der skulle være luft omkring os. Der skulle ikke nødvendigvis være kæmpe mange kvadratmeter, men de skulle placeres godt. Rumfornemmelsen var essentiel i hele huset.”

Tid til alt det sjove

For Louise og Morten er det svært at sætte kun én finger på, hvad der er det bedste ved at bo i et nybygget hus.

”Det er en kombination af mange ting som f.eks. de lave driftsomkostninger og det minimale vedligehold, som giver os god tid til børnene og til alt det sjove,” fortæller Morten.

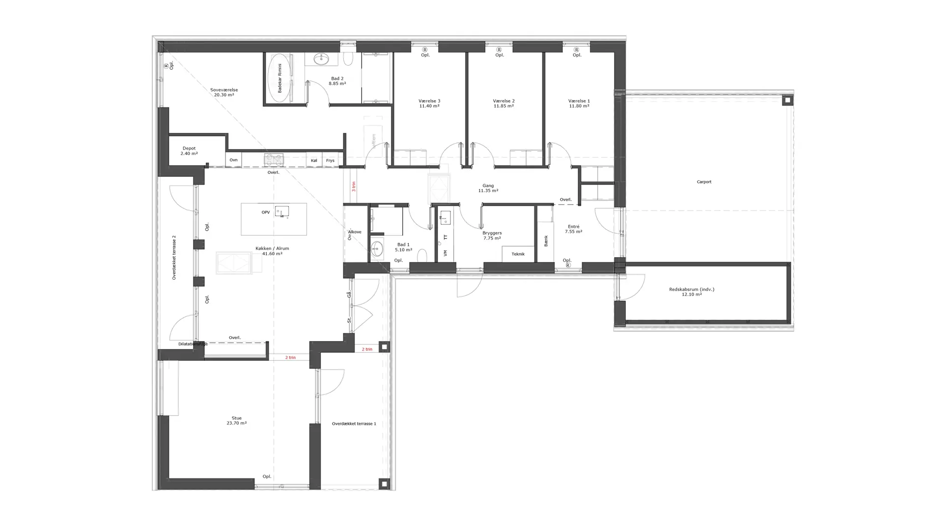
Louise og Mortens plantegning

Oplev detaljerne - klik på billedet

Gå på opdagelse i huset

Louise og Mortens bedste tips til at bygge nyt

  • Det er altid kompromisernes kunst at bygge nyt – så mærk efter, hvad der betyder mest. For os var den indendørs rumoplevelse vigtigere end f.eks. det ydre udtryk.

  • Det er vigtigt at overveje husets placering på grunden meget grundigt. Tænk over, hvad I har lyst til at kigge ud på fra hvilke rum og hvilken oplevelse, I gerne vil skabe, når I kigger ud. Overvej også, hvor I vil prioritere at få morgen-, eftermiddags- og aftensol ind, og tilpas husets indretning verdenshjørnerne.

  • Tag ud at se rigtig meget, når I skal samle inspiration - både gammelt og nyt, og læg mærke til, hvordan bygningerne er skruet sammen og med hvilke materialer og farver.

Vi er ikke gør det selv-typerne, så derfor er det skønt for os, at basen fungerer.

Louise og Morten

Kig også indenfor hos

Moderne parcel med masser af opbevaring

Moderne funkis i genbrugsmursten

Landsted i moderne fortolkning