HusCompagniet
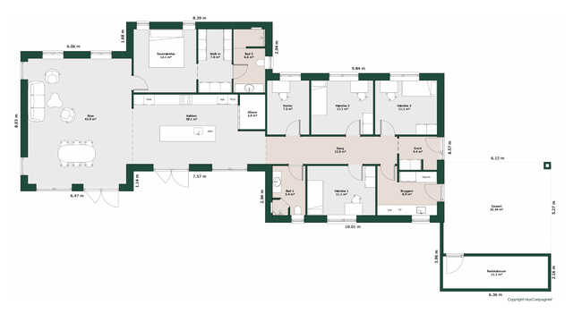
196 m2 forskudt hus, med ægte New Yorker stemning. I den ene ende af huset har vi børne-/teenageafdelingen, med to store værelser samt et stort multirum. Derudover har denne afdeling også et badeværelse og et kontor. Herfra kommer man ind i stuen, som er I åben forbindelse til køkken/alrum. Fremragende lysindfald fra de store vinduespartier. Stor forældreafdeling med dejligt spændende indrettet badeværelse.

Vi ser frem til at kontakte dig hurtigst muligt. Når du trykker send her, afgiver du samtykke til, at vi fremover må henvende os til dig på e-mail og telefon. Vores henvendelser indeholder god information om husbyggeri og konkrete tilbud. Vi behandler dine personoplysninger med stor omtanke, og som beskrevet i vores persondatapolitik Du kan til enhver tid tilbagekalde dit samtykke.

Bestil vores gratis katalog og se masser af arkitektur, få fakta, inspiration og bliv klogere på dine muligheder. Bliv inspireret til dit nye hjem.