Gå til primært indhold Gå til footer indhold

Husets form

Formen skal passe til grunden - og hele familien

Hvilken husform skal du vælge – og hvorfor?

Der er mange faktorer at overveje, når du vælger formen på dit nybyg. Det hus, du bygger, skal passe til din familie og sikre, at I får en velfungerende hverdag. Men valg af husets form, kan også udspringe af din grunds størrelse og udformning. Er den flad eller skrånende? Hvordan er udsigtslinjerne og solens vandring henover dagen? Skal haven være foran eller bagved huset , og hvor finder du de bedste lækroge?

Vi hjælper dig med at finde den husform, der passer bedst til dit byggeprojekt.

Længehus

Et længehus er baseret på et rektangel. Denne form er oftest den mest omkostningseffektive, hvis den matcher grunden. Den kan dog udfordres på spændende vis med forskydninger

Vinkelhus

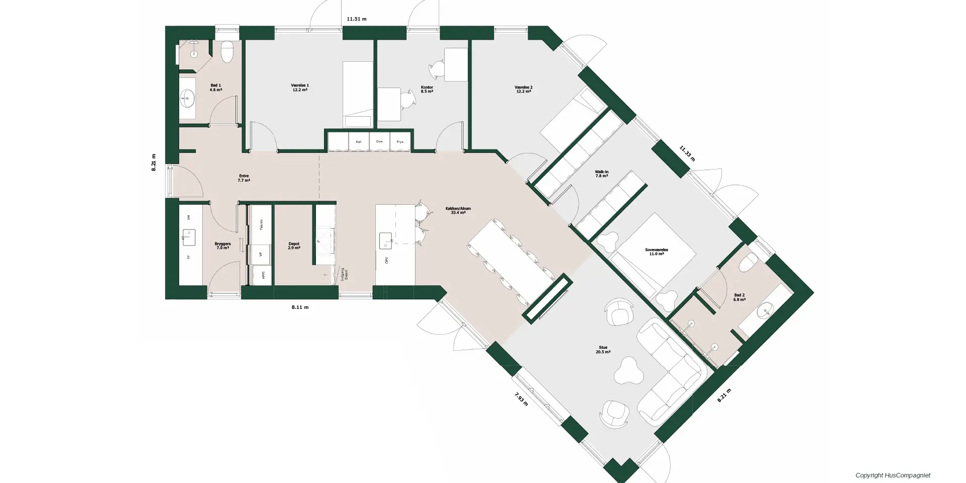
Et vinkelhus består af to rektangler i ret vinkel. Den traditionelle form er bl.a. populær, fordi den giver mulighed for et stort hjørne, der naturligt skaber en terrasse med læ. 

Knækhus

Knækhusets lille vinkling skaber en mellemting mellem et længehus og et vinkelhus. Knækhuset passer især godt til en større grund eller til dig, som ønsker at udnytte solen i hele huset uden at skulle vælge det mere traditionelle længehus. 'Knækket' kan sættes, der hvor det giver mest mening i forhold til plantegning og grunden. 

H-hus

H’et er bare formen på huset. Det betyder også, at du får en kompakt løsning, hvor der er oplagt mulighed for at inddele huset i afdelinger, og hvor der er god mulighed for terrasser på begge sider af huset.

Forskudt hus

Skabt til den krævende grund og næsten uden grænser for kreativiteten giver den forskudte form mulighed for lysindfald fra mange sider, for læhjørner på alle sider af huset og meget mere.

Udforsk de arkitektoniske former

Længehus | Sadeltag uden udhæng | 717088

Længehus | Ensidig taghældning | 704980

Længehus | Sadeltag uden udhæng | 704733

Længehus | Sadeltag uden udhæng | 709694

Vinkelhus | Valmtag uden udhæng | 702963

Vinkelhus | Valmtag | 717087

Vinkelhus | Valmtag | 719459

Vinkelhus | Valmtag uden udhæng | 718063

Knækhus | Sadeltag uden udhæng | 317470

Vinkelhus | Sadeltag uden udhæng | 718743

H-hus | Sadeltag uden udhæng | 118096

H-hus | Valmtag | 702261

Forskudt plan | Sadeltag uden udhæng | 800181

Forskudt plan | Fladt tag | 704984

Forskudt plan | Fladt tag | 717089

Forskudt plan | Sadeltag uden udhæng | 715423

Hold musen over billedet eller klik på billedet og se, hvilken husform der gemmer sig.

1½-plan - et klassisk valg

1½-planshuset er en klassiker i det danske bybillede og et oplagt valg på mindre grunde i tæt bebyggede områder.

Med en udnyttet 1. sal får du også ekstra kvadratmeter og en hyggelig overetage, hvor du kan arbejde med lysindfald fra fx  kviste eller tagvinduer.

2-plan - få mere plads ved at bygge i højden

Et 2-planshus er ideelt i tætbebyggede områder, hvor du gerne vil have så mange kvadratmeter som muligt og have plads til en dejlig have.

2-planshuset er også ideelt, hvis 1. salen har den allerbedste udsigt. Her kan du vælge at placere køkken/alrum og stue på øverste etage – eventuelt kombineret med en terrasse, hvor udelivet kan nydes.

Tagets form definerer husets udtryk

Når du har valgt den husform, der passer til din grund, skal du også tage stilling til tagets design. Taget har stor betydning for husets samlede arkitektoniske udtryk. Alene ved at ændre taget kan samme hus skifte karakter.

Oplev vores store plantegningsunivers

Drømmer du om at bygge nyt?
I vores plantegningsunivers finder du et stort udvalg af vores gennemtænkte planløsninger, der passer til forskellige behov, livsstile og byggegrunde. Uanset om du ønsker et klassisk parcelhus, et vinkelhus eller noget helt tredje, kan du gå på opdagelse i inspirerende plantegninger og finde den løsning, der matcher dine boligdrømme.